Aménagement en bord de Loire
Tulou
Workshop sous la direction des architectes : Patrice Warnant et éric Arsenault.
Projet en équipe.
Réfléxion sur des aménagements d’habitat collectif s’inscrivant dans une structure en béton imposée reprenant le concept de « maisons villages » TULOU (Chine)
La structure étant implantée en bord de Loire, nous devions prendre en compte les risques de submersion.
Nous avons donc réfléchi à différents principes et systèmes résilients.
















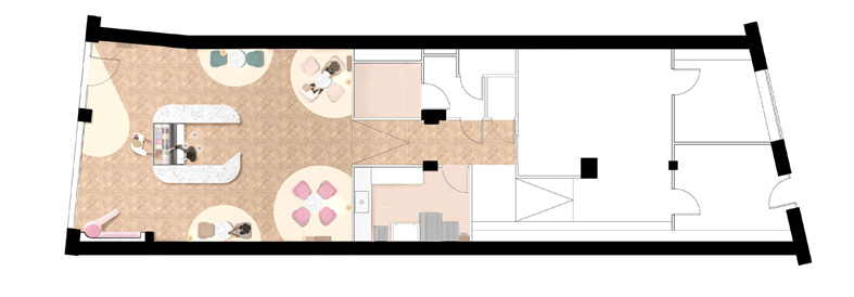
BOUTIQUE & DESIGN
Univers Glacé
Ce projet consistait à aménager l’intérieur d’une boutique située à Nevers.
Suite à l’attribution aléatoire de deux notions, Humour et Lumière, ainsi que du type de commerce, un glacier, notre mission consistait à concevoir un concept ainsi qu’un aménagement intérieur et extérieur, incluant la devanture et la vitrine.
Nous devions également réfléchir à des éléments de communication tels que logos, charte graphique, menus, flyers, site internet, habits du personnel… Réflexion sur les vêtements du personnel et le packaging des produits.






Scénographie théâtre
Les Créanciers
Réalisation d’une scénographie pour une pièce de théâtre «Les créanciers» de Philippe Calvario…
Suite à la réadaptation de la pièce de théâtre «Créanciers» par Philippe Calvario, réalisée à l’origine par August Strindberg, une collaboration entre la Maison de la Culture et l’Esaab a vu le jour.
Philippe Calvario a donc fait appel à deux equipes de designer d’espace afin d’élaborer une scénographie pour cette pièce de théâtre.
Conception d’une maquette echelle 1/40e avec intégration de dispositifs lumineux, puis prises de vue en studio photos et retouches sur photoshop.















